Projetar uma casa com frente para o imenso mar Mediterrâneo não foi uma tarefa fácil, mas depois de uma longa jornada, a equipe de engenheiros da Cadaval & Solà-Morales conseguiu realizar esta tarefa, e projetaram uma linda casa de frente para o mar, que recebeu o nome de Casa Girassol.
Este projeto foi desenvolvido para que de cada ambiente da casa seja possível ver o mar, e também para garantir o melhor aproveitamento da luz do sol, oferecendo assim ambientes com temperatura mais agradável, em especial durante a noite.

Casa Girassol.
Além disso, os engenheiros tiveram que buscar ideias para afastar a força dos ventos vindos do mar diretamente nas janelas, que resultaram em modernidade e muito mais conforto no interior do imóvel.
A casa girassol
A casa girassol foi construída em El Port de La Selva – Girona, na Espanha, e tem a assinatura do escritório de arquitetura e engenharia Cadaval & Solà-Morales.
Ela possui um formato geométrico moderno, e que foi elaborado para manter as faces dos cômodos voltadas para o imenso mar, permitindo que cada ambiente da casa seja uma tela panorâmica para esta belíssima paisagem.
Seu formato também lhe rendeu o nome de casa girassol, pois oferece maior aproveitamento da luz solar durante todo o dia, deixando cada ambiente mais aquecido e bem iluminado. Veja outras plantas de casas de praia!

Todos ambientes são aquecidos e recebem luz solar direta.
Em cada canto a geometria pode ser vista, com linhas retas e planas, e que são uma tendência da arquitetura moderna atual.
Já para evitar a força dos ventos, os engenheiros utilizaram para este projeto inúmeras vidraças com espessura bem elevada, que são modernas e utilizadas para construção dos enormes arranha-céus ao redor do mundo.
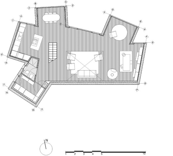
Planta da casa girassol
Abaixo vocês podem conferir os detalhes da planta da casa girassol, com ilustrações de ambos os pavimentos do imóvel vistos do alto:
Outras imagens da casa girassol
Confiram também mais estas imagens que mostram um pouco mais deste belíssimo projeto desenvolvido pelo escritório de engenharia Cadaval & Solà-Morales:
Gostou do projeto da casa de frente ao mar? Comente!



















